Stambeni objekat "Banovac SP10" u Ilijašu
Fazum-gradnja d.o.o. je u aprilu 2023. godine počela sa izgradnjom nove stambene zgrade 'Banovac SP10'.

Slobodni stanovi:
0
Slobodna grazna mjesta:
0
Slobodni poslovni prostori:
1
Godina izgradnje:2024
Objekat je smješten na lokalitetu Banovac, uz ostale zgrade kolektivnog stanovanja, a u blizini gradske tržnice, trgovačkog centra Bingo, osnovne i srednje škole, obdaništa te Gradskog stadiona.
Dimenzije objekta iznose 19,00 m x 14,00 m, spratnosti: podrum, prizemlje i 5 etaža, sa ukupno 19 stambenih jedinica, 5 poslovnih prostora i 6 garažnih mjesta. U ponudi su dvosobni, trosobni i četverosobni stanovi, kvadrature u rasponu od 45 m2 do 110 m2 .
Pronađite svoje idealno mjesto stanovanja
Prizemlje
Lista slobodnih prostorija na prizemnom dijelu ovogg sjhshdajd jasdja jsadjadajdja
Stan br.1 (zauzeto)
Stan br.2 (zauzeto)
I sprat
Lista slobodnih prostorija na prizemnom dijelu ovogg sjhshdajd jasdja jsadjadajdja
Stan br.3 (zauzeto)
Stan br.4 (zauzeto)
Stan br.5 (zauzeto)
Stan br.6 (zauzeto)
II sprat
Lista slobodnih prostorija na prizemnom dijelu ovogg sjhshdajd jasdja jsadjadajdja
Stan br.7 (zauzeto)
Stan br.8 (zauzeto)
Stan br.9 (zauzeto)
Stan br.10 (zauzeto)
III sprat
Lista slobodnih prostorija na prizemnom dijelu ovogg sjhshdajd jasdja jsadjadajdja
Stan br.11 (zauzeto)
Stan br.12 (zauzeto)
Stan br.13 (zauzeto)
Stan br.14 (zauzeto)
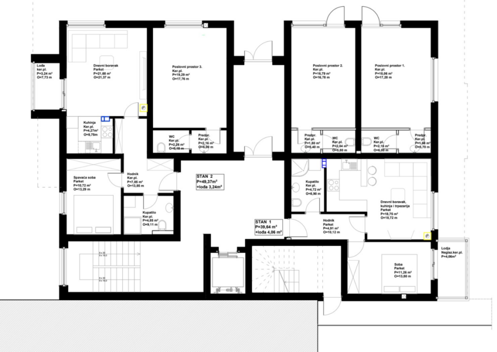
Prizemlje
Lista slobodnih prostorija na prizemnom dijelu ovogg sjhshdajd jasdja jsadjadajdja
Poslovni prostor br.1 (slobodno)
Poslovni prostor br.2 (zauzeto)
Poslovni prostor br.3 (zauzeto)
Prodaja jedinica
Kontaktiraj nas ili nas posjetite na našoj dobro poznatoj lokaciji u Lješevu
033 402-856
fazum@bih.net.ba





